snark•i•tech•ture • noun solving design problems with technology and a playful humor
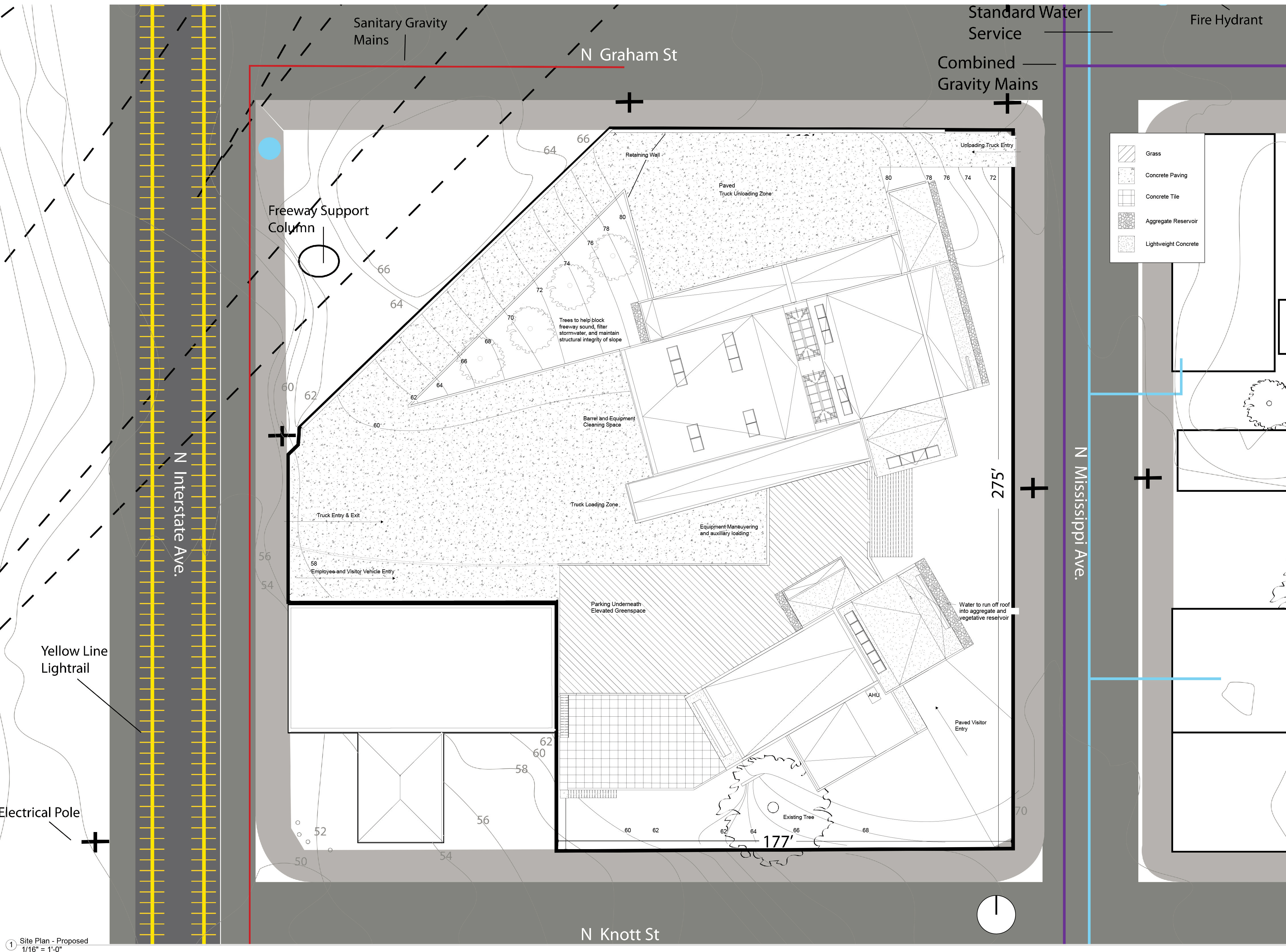
Programmatically the winery will act as a makerspace or collective for small businesses and hobbyist vintners. Design-wise the winery will explore ideas of urbanness via density, clustering, and texture.
Mixed-Use Industrial - Studio
Spring 2020
Architecture,Winery,Makerspace